Architectural
Structural Design
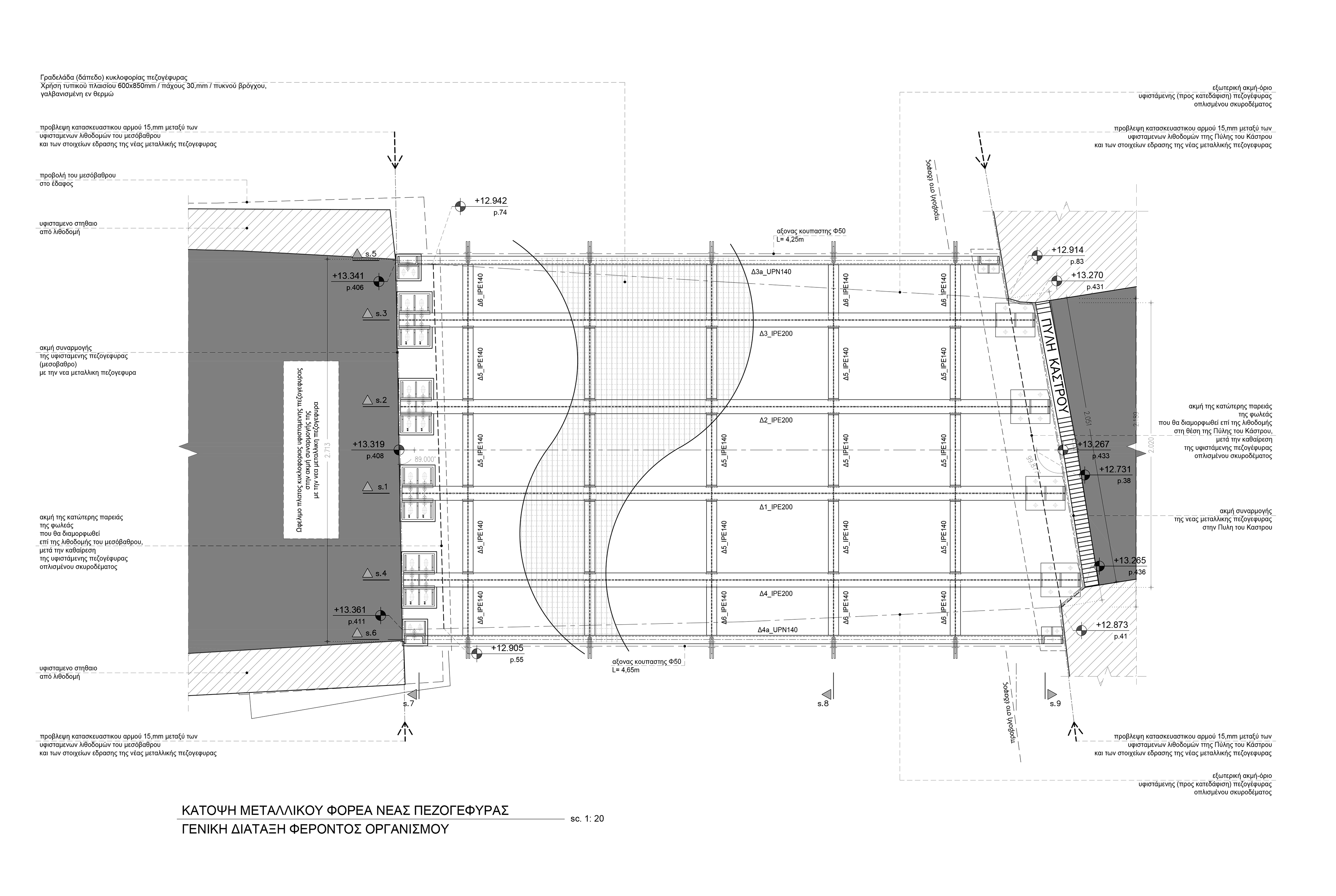
Steel Structure
MEP Design
Rehabilitation
Project Management
CONTACT
Architectural
Structural Design
Steel Structure
MEP Design
Rehabilitation
Project Management
CONTACT
Varouxakis

New pedestrian steel bridge - Kos

New steel bridge for central entrance of visitors in Kos Client: Hellenic Republic Ministry of Culture - Directorate for the Restoration of Byzantine & Post-Byzantine Monuments Castro Nerantzias - Island of Kos

2019