Architectural
Structural Design
Steel Structure
MEP Design
Rehabilitation
Project Management
CONTACT
Architectural
Structural Design
Steel Structure
MEP Design
Rehabilitation
Project Management
CONTACT
Varouxakis

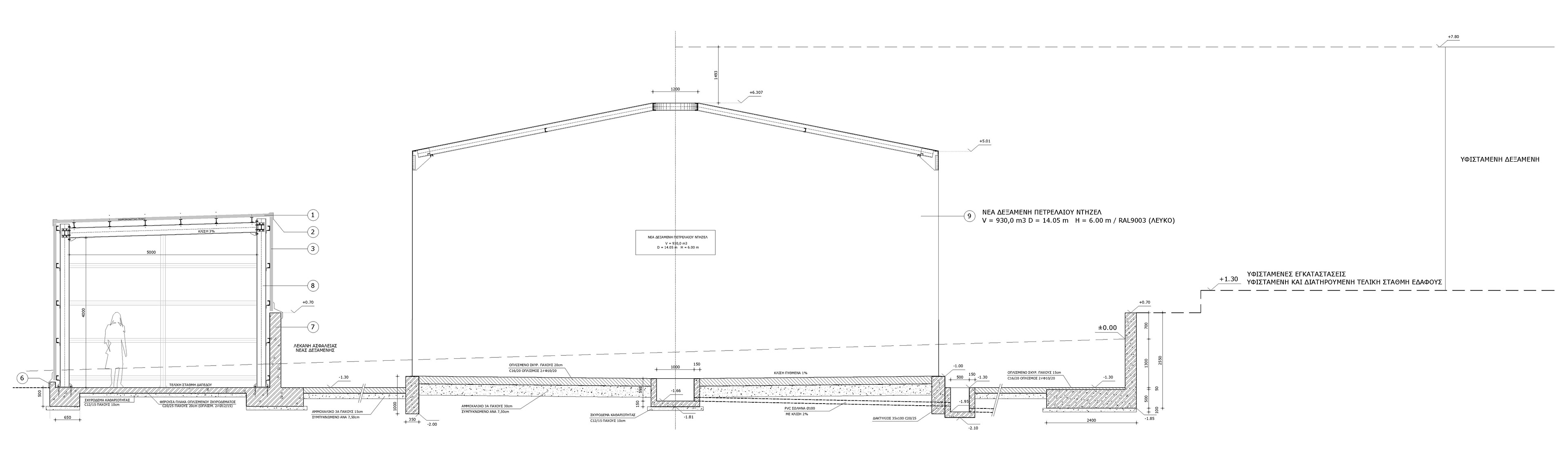
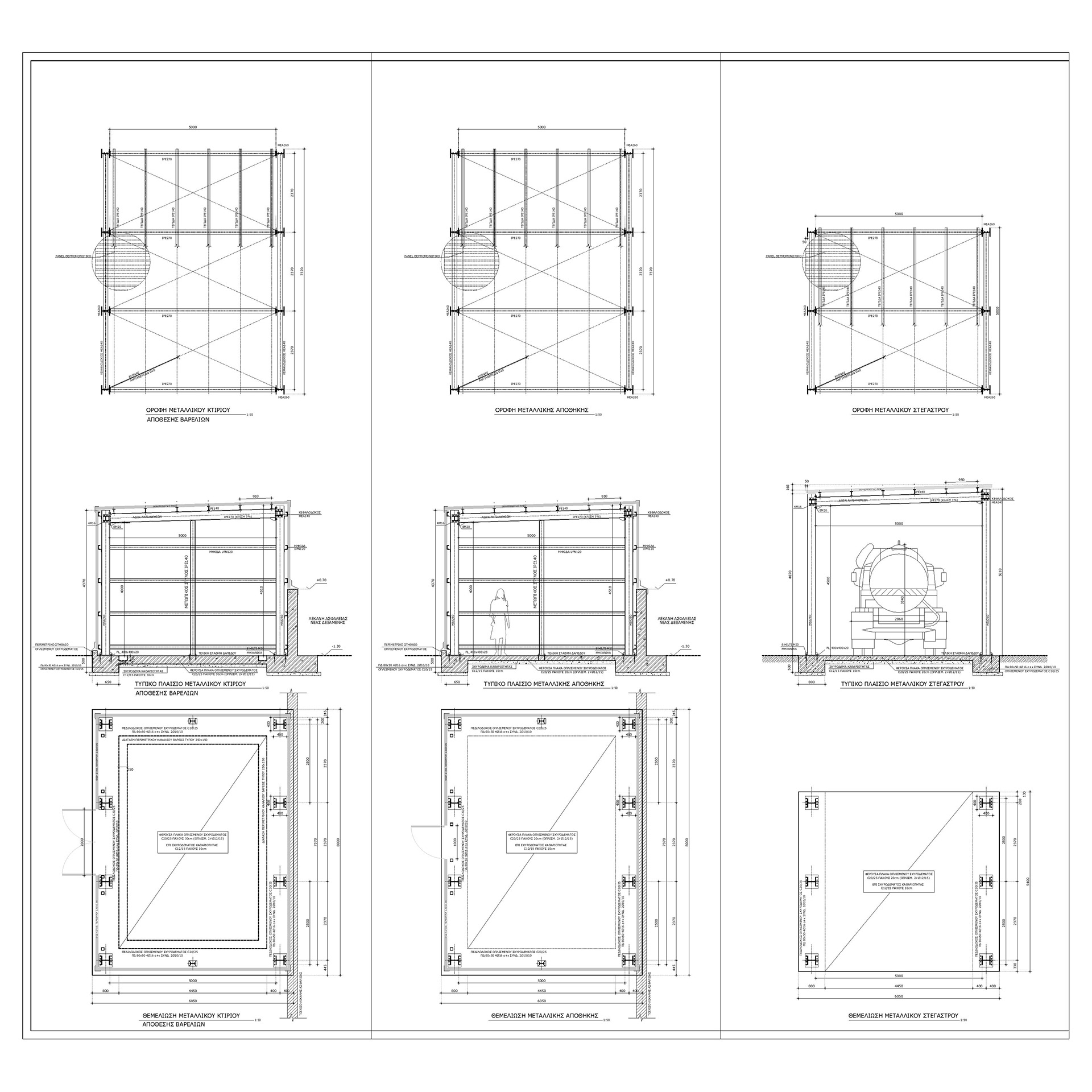
New Diesel Tank | Sifnos

Structural Design Of A New Diesel Tank 930m3 At Ppc Local Power Station In Sifnos Isl. • Client: Ppc Sa - Islands Department

2014