Architectural
Structural Design
Steel Structure
MEP Design
Rehabilitation
Project Management
CONTACT
Architectural
Structural Design
Steel Structure
MEP Design
Rehabilitation
Project Management
CONTACT
Varouxakis

Power Station | Syros

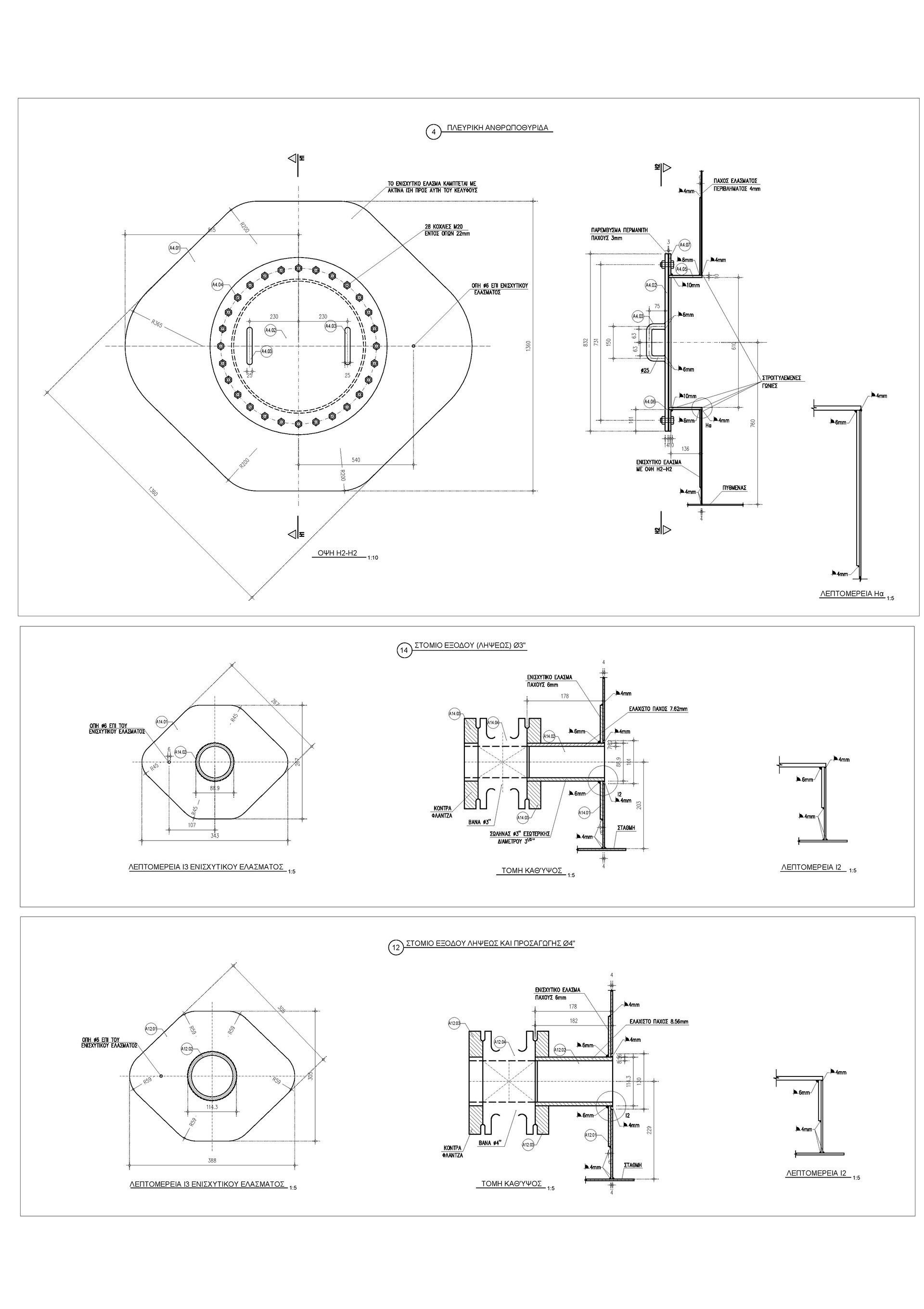
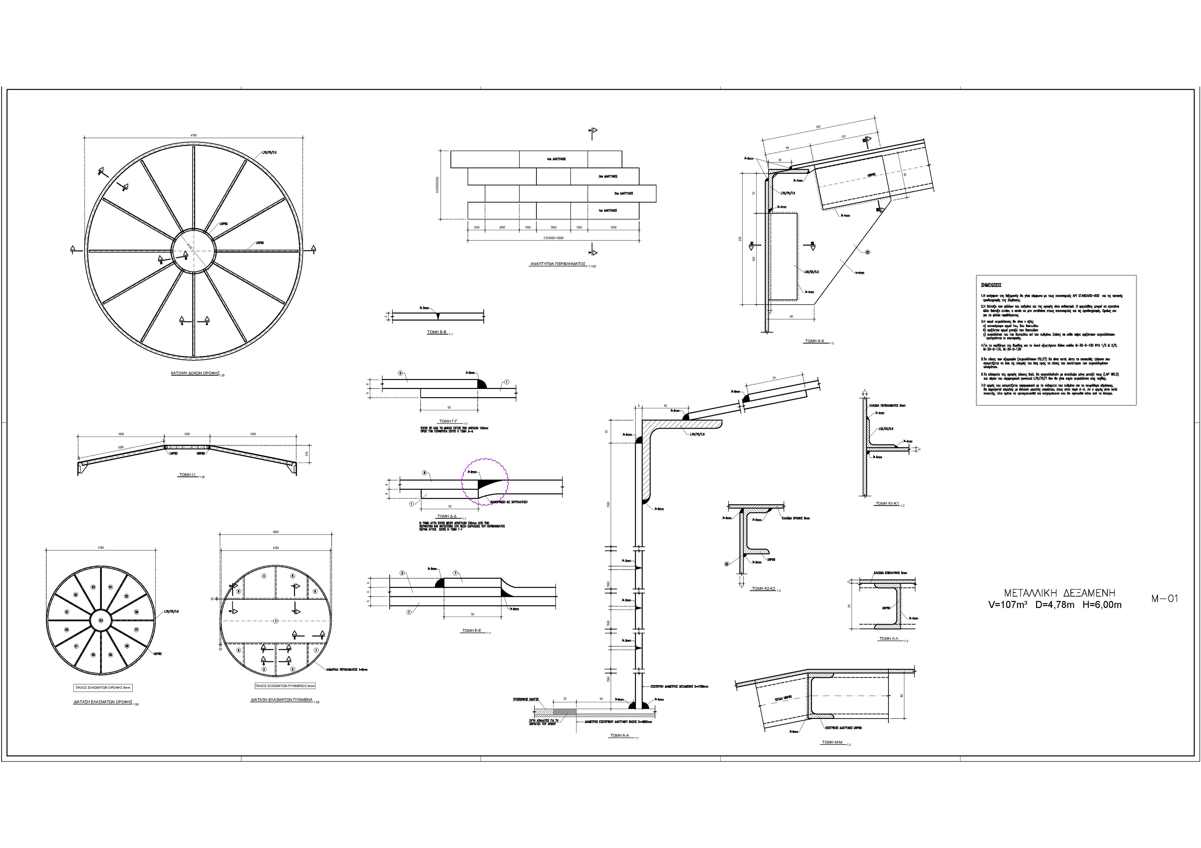
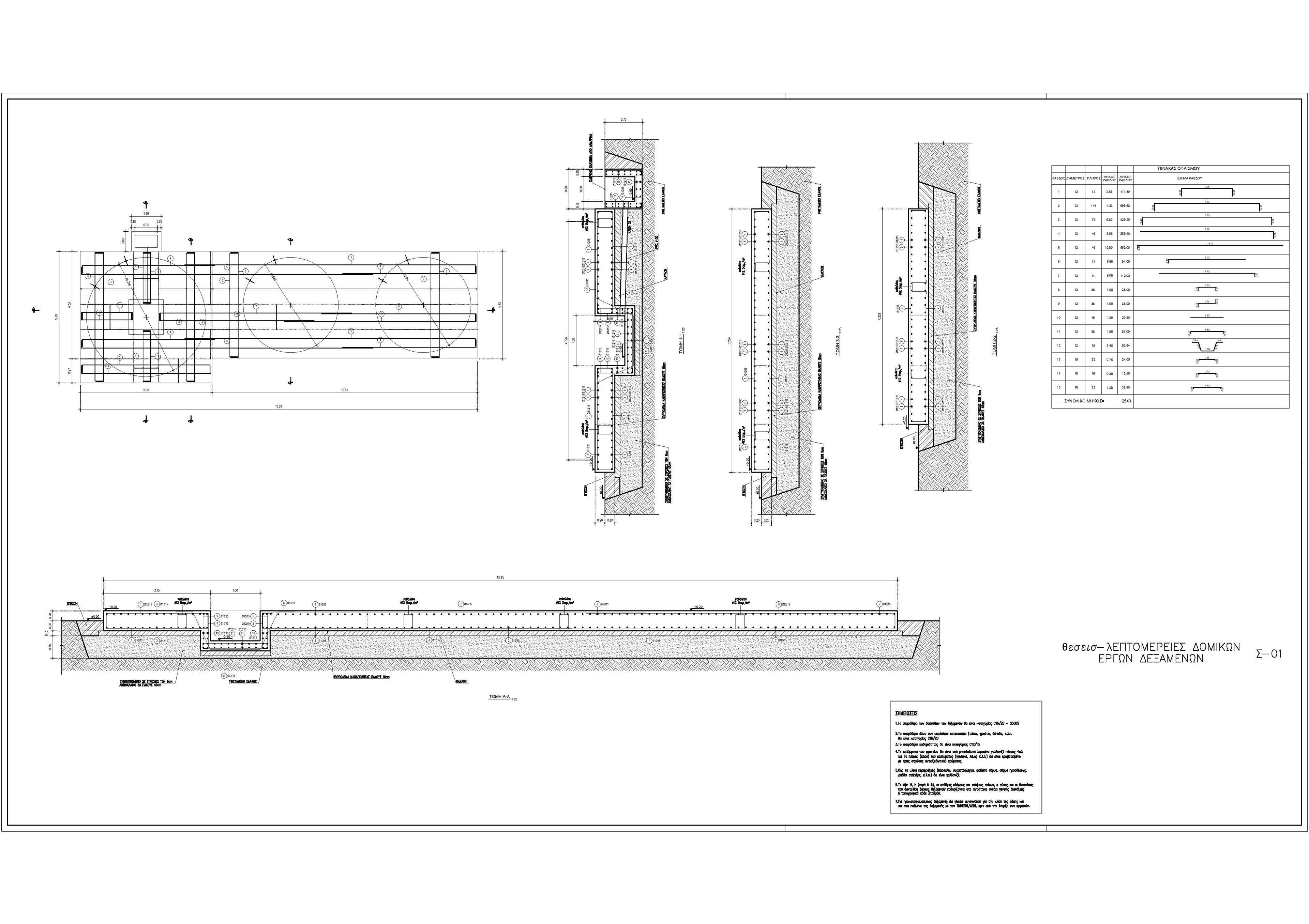
Oil Storage Tanks Construction At Ppc Local Power Stations In Syros Isl. V=107m³ , D=4,78m , H=6,00m (1 Tank) V=69m³ , D=3,82m , H=6,00m (2 Tanks – Inox304) • Client: Ppc Sa - Islands Department

2009