Architectural
Structural Design
Steel Structure
MEP Design
Rehabilitation
Project Management
CONTACT
Architectural
Structural Design
Steel Structure
MEP Design
Rehabilitation
Project Management
CONTACT
Varouxakis

Rotana | Bahrain

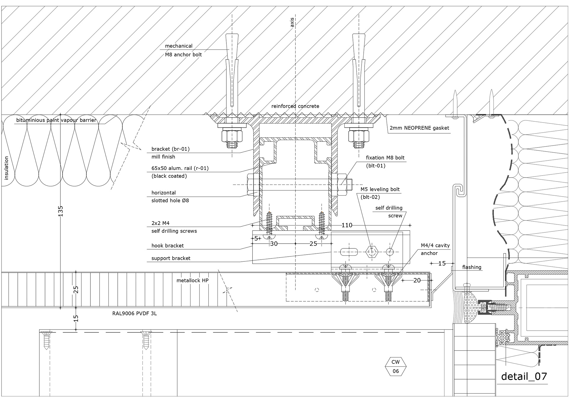
Downtown Rotana Hotel Manama Bahrain Structural Design Manufacture Supply & Supervision of Installation of Aluminium Honeycomb Panels System in Bahrain Main Contractor: G.P. Zachariades Overseas LTD

2013